btn_menu (02241) 47-5223 / (02223) 46-8606
Fotos Fotos
Datos Volver

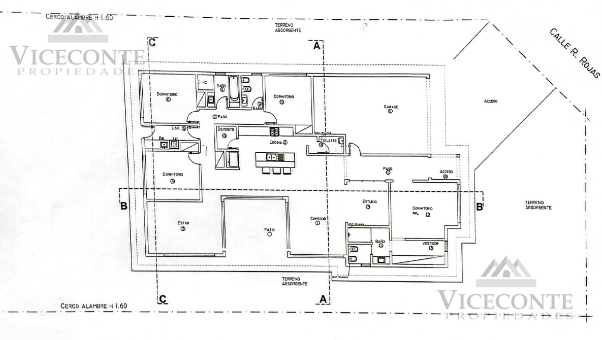
Casa 230 m2 en construcción, barrio El Chañar II, Brandsen, Buenos Aires.

Location RQF5+2QJ Coronel Brandsen, Provincia de Buenos Aires - Brandsen

Prev
Prev
Venta
USD 80.000
Propiedad

Casas

Ambientes

más de 4 ambientes

Dormitorio

4 dormitorios

Baño

3 baños

Superficie

Sup. cubierta 230m2

Superficie Total

Sup. total 1159m2

Datos Acerca de la propiedad

Inmueble ubicado en el barrio El Chañar II, Brandsen, provincia de Buenos Aires.
Sobre calle de mejorado.
A pocas cuadras de la RP N° 215.
Luz eléctrica.
Tiene una perforación de aproximadamente 25 mts. 
Cañería para las cloacas hechas.
Alambrado de 7 hilos su perímetro.


Compuesto por:
  • Cocina.
  • Living comedor.
  • Cuatro dormitorios, uno de ellos con baño en suite y vestidor.
  • Baño.
  • Baño de servicio/toilette al lado de la cocina.
  • Depósito/Despensa.
  • Oficina.
  • Lavadero
  • Garaje para dos vehiculos.
  • Jardin de invierno.
  • Patio

Comodidades Comodidades

Cochera

2 cocheras

Ver más vermas

Datos Ubicación

Venta

USD 80.000

Datos Propiedades Relacionadas

Contacto

¿Te interesa esta propiedad?
Contactate ahora

Ver
Chatea con nosotros
Whatsapp